
賃料 |
25万円 |
共益費/管理費 |
10,000円 |
---|---|---|---|
現況 |
空室 |
引渡時期 |
リフォーム中 |
敷金 |
1ヶ月 |
礼金 |
1ヶ月 |
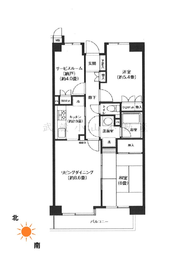
間取り |
2LDK+S |
面積 |
61.29m²(18.54坪) |
西暦築年月 |
1988/03(築37年) |
建物構造 |
鉄筋コンクリート造 |
階建 |
1階/7階建 |
住所 |
品川区小山5丁目 |
駅徒歩 |
東急目黒線武蔵小山駅まで 徒歩7分
東急目黒線西小山駅まで 徒歩3分 |
バスに乗るなら? |
東急バス 反11 五反田駅~世田谷区民会館 「武蔵小山駅」まで 徒歩7分 |
お電話でのお問い合わせ
物件番号:6465
お電話でお問い合わせの際は、物件番号をお伝えください。
03-6426-2518
営業時間:店舗営業時間 11:00~16:00 (電話受付 10:00~17:00まで)
定休日:水曜・その他不定休あり(GW・夏季・年末年始含む)
ポイント
POINT
①サービスルームも付いてる2LDKの部屋!
②お子様がいるお客様にとーーってもオススメです!
③空きがあれば車を駐車が出来ます!(別途料金は掛かります)
次の④からは悩む?かも知れないポイント
④指定時間はあるけど楽器(ピアノ)演奏可の物件。つまり..。
⑤自転車は1住戸に1台まで。(空きがあればですが料金をお支払いの上で追加でもう1台分を借りることも相談可能なはずです。)
Photo : Daisuke Hishiki
※写真をタッチしてみてください! タブレットやPCでご覧いただけますと写真は標準サイズに拡大されるのでとても見やすくなります!!
②お子様がいるお客様にとーーってもオススメです!
③空きがあれば車を駐車が出来ます!(別途料金は掛かります)
次の④からは悩む?かも知れないポイント
④指定時間はあるけど楽器(ピアノ)演奏可の物件。つまり..。
⑤自転車は1住戸に1台まで。(空きがあればですが料金をお支払いの上で追加でもう1台分を借りることも相談可能なはずです。)
Photo : Daisuke Hishiki
※写真をタッチしてみてください! タブレットやPCでご覧いただけますと写真は標準サイズに拡大されるのでとても見やすくなります!!
物件詳細DETAIL
間取詳細 |
K(約2.9帖) LD(約8.6帖) 洋室(約5.4帖) 和室(約6.0帖) 納戸(約4.0帖) |
向き |
南西 |
---|---|---|---|
設備情報&地域情報 |
システムキッチン、3口コンロ、ガスコンロ、グリル、バス・トイレ別、追い焚き風呂、温水洗浄便座、独立洗面化粧台、脱衣スペース、室内洗濯機置場、洗面所独立、洋室、フローリング、和室、クローゼット、押入れ、収納、シューズボックス、エアコン、バルコニー、オートロック、モニター付インターホン、エレベーター、宅配BOX完備、防犯カメラ、専用ごみ置場、自転車置場(要空き確認)、駐車場(要空き確認)、BSアンテナ、インターネット接続可、2人入居可、お子様相談
![]() ・----- ☆☆☆ ご近所のオススメ店 ☆☆☆ |
||
保険等 |
要 18,000円 2年 |
保証会社 |
必須 詳細はお気軽にお問い合わせ下さい |
契約期間 |
2年 |
更新料 |
新賃料の1ヶ月+更新事務手数料(要確認) |
駐車場 |
要空き確認(賃料等はご確認ください) |
学区 |
品川区立 小山小学校
荏原第六中学校 |
諸費用 |
鍵交換代(税込) 22,000円
その他諸費用はご確認ください。 -
法人契約の場合に条件が変わることがあります。 - |
||
お客様へお願い |
内見予約のお問い合わせをいただいた後、最新の募集状況 と 募集内容(賃料・礼金・敷金・フリーレント等の条件)を再度確認してお返事いたします。 人気のお部屋は退室予定のお部屋でも先行申込みが入ってしまう場合も多々ございますのでご理解の程どうぞよろしくお願いいたします。 そのため掲載していても申込みが入ってしまっている場合もございますことをご了承くださいませ。 気づいた際にはすぐに物件情報を削除しております。 |
||
取引態様 |
仲介 |
仲介手数料(税別) |
1ヶ月 |
情報更新日 |
2025年10月09日 |
次回更新予定日 |
2025年10月10日 |
※掲載されている物件データが現状と異なる場合は現状を優先します。
周辺地図MAP

武蔵小山不動産COMPANY
所在地 |
東京都品川区小山3-6-6 ワールドパレス武蔵小山 104 |
||
---|---|---|---|
免許番号 |
東京都知事免許(3)第95799号 |
||
会員 |
(公社)全国宅地建物取引業協会連合会
(公社)全国宅地建物取引業保証協会
|
||
電話番号 |
03-6426-2518 |
FAX番号 |
03-6426-2519 |
営業時間 |
店舗営業時間 11:00~16:00 (電話受付 10:00~17:00まで) |
定休日 |
水曜・その他不定休あり(GW・夏季・年末年始含む) |