
賃料 |
13万円 |
共益費/管理費 |
10,000円 |
---|---|---|---|
現況 |
居住中 |
引渡時期 |
相談 |
敷金 |
1ヶ月 |
礼金 |
1ヶ月 |
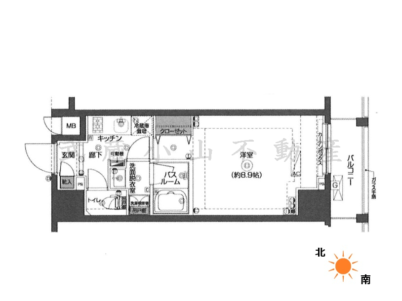
間取り |
1K |
面積 |
28.49m²(8.61坪) |
西暦築年月 |
2017/11(築7年) |
建物構造 |
鉄筋コンクリート造 |
階建 |
10階/15階建 |
住所 |
品川区荏原1丁目 |
駅徒歩 |
東急池上線戸越銀座駅まで 徒歩7分
東急池上線戸越銀座駅まで 徒歩9分
東急目黒線不動前駅まで 徒歩12分 |
バスに乗るなら? |
東急バス 渋72 渋谷駅東口~五反田駅 「荏原一丁目」まで 徒歩1分 |
お電話でのお問い合わせ
物件番号:6471
お電話でお問い合わせの際は、物件番号をお伝えください。
03-6426-2518
営業時間:店舗営業時間 11:00~16:00 (電話受付 10:00~17:00まで)
定休日:水曜・その他不定休あり(GW・夏季・年末年始含む)
ポイント
POINT
①ペットと一緒に暮らせます!
②広めの洋室(約8.9帖)!
③バイク駐輪可能(空き&サイズは要確認)!
次の④からは悩む?かも知れないポイント
④ペット可物件なので動物が苦手な方は要注意!
⑤エレベーターは1基です。
Photo : Daisuke Hishiki
※写真をタッチしてみてください! タブレットやPCでご覧いただけますと写真は標準サイズに拡大されるのでとても見やすくなります!!
②広めの洋室(約8.9帖)!
③バイク駐輪可能(空き&サイズは要確認)!
次の④からは悩む?かも知れないポイント
④ペット可物件なので動物が苦手な方は要注意!
⑤エレベーターは1基です。
Photo : Daisuke Hishiki
※写真をタッチしてみてください! タブレットやPCでご覧いただけますと写真は標準サイズに拡大されるのでとても見やすくなります!!
物件詳細DETAIL
間取詳細 |
K 洋室(約8.9帖) |
向き |
南東 |
---|---|---|---|
設備情報&地域情報 |
システムキッチン、2口ガスコンロ、バス・トイレ別、浴室換気乾燥機、24時間換気システム、追い焚き風呂、温水洗浄便座、独立洗面化粧台、脱衣スペース、室内洗濯機置場、洗面所独立、洋室、フローリング、クローゼット、収納、シューズボックス、エアコン、室内物干し、ペアガラス、バルコニー、2階以上、オートロック、TVモニター付インターホン、エレベーター、宅配BOX完備、防犯カメラ、専用ごみ置場(24時間タイプ)、自転車置場、バイク置場、インターネット接続可、
![]() ・----- |
||
保険等 |
要 |
保証会社 |
必須 / 提携保証会社は要確認 / 初回保証委託料や保証委託更新料等の詳細はお気軽にお問合せください。 |
契約期間 |
2年 |
更新料 |
新賃料の1ヶ月+更新事務手数料(要確認) |
駐車場 |
無し |
学区 |
―
― |
諸費用 |
鍵交換代(要確認) 33,000円
家財保険(月額) 1,735円 |
||
お客様へお願い |
内見予約のお問い合わせをいただいた後、最新の募集状況 と 募集内容(賃料・礼金・敷金・フリーレント等の条件)を再度確認してお返事いたします。 人気のお部屋は退室予定のお部屋でも先行申込みが入ってしまう場合も多々ございますのでご理解の程どうぞよろしくお願いいたします。 そのため掲載していても申込みが入ってしまっている場合もございますことをご了承くださいませ。 気づいた際にはすぐに物件情報を削除しております。 |
||
取引態様 |
仲介 |
仲介手数料(税別) |
1ヶ月 |
情報更新日 |
2025年10月09日 |
次回更新予定日 |
2025年10月10日 |
※掲載されている物件データが現状と異なる場合は現状を優先します。
周辺地図MAP

武蔵小山不動産COMPANY
所在地 |
東京都品川区小山3-6-6 ワールドパレス武蔵小山 104 |
||
---|---|---|---|
免許番号 |
東京都知事免許(3)第95799号 |
||
会員 |
(公社)全国宅地建物取引業協会連合会
(公社)全国宅地建物取引業保証協会
|
||
電話番号 |
03-6426-2518 |
FAX番号 |
03-6426-2519 |
営業時間 |
店舗営業時間 11:00~16:00 (電話受付 10:00~17:00まで) |
定休日 |
水曜・その他不定休あり(GW・夏季・年末年始含む) |