賃料 |
9万円 |
共益費/管理費 |
- |
|---|---|---|---|
現況 |
空室 |
引渡時期 |
即時 |
敷金 |
1ヶ月 |
礼金 |
1ヶ月 |
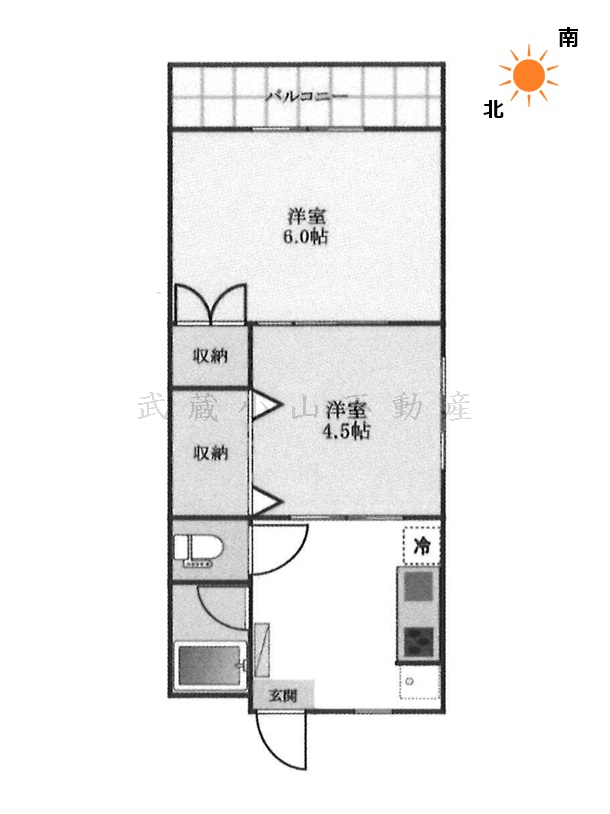
間取り |
2K |
面積 |
33m²(9.98坪) |
西暦築年月 |
1972/05(築53年) |
建物構造 |
鉄筋コンクリート造 |
階建 |
2階/3階建 |
住所 |
品川区荏原4丁目 |
駅徒歩 |
東急目黒線武蔵小山駅まで 徒歩9分
東急目黒線西小山駅まで 徒歩11分
東急池上線戸越銀座駅まで 徒歩12分 |
バスに乗るなら? |
東急バス 反11 五反田駅~世田谷区民会館 「小山三丁目」まで 徒歩4分 285m |
お電話でのお問い合わせ
物件番号:6479
お電話でお問い合わせの際は、物件番号をお伝えください。
03-6426-2518
営業時間:店舗営業時間 11:00~16:00 (電話受付 10:00~17:00まで)
定休日:水曜・その他不定休あり(GW・夏季・年末年始含む)
ポイント
POINT
①昭和レトロなマンションにお住まいになりたい方にオススメ!
②お部屋の中はリフォームされていてとっても綺麗!
③角部屋で3面採光でキッチンも洋室も明るい!
次の④からは悩む?かも知れないポイント
④築年数が気になる方に僕はオススメ出来ません!
⑤エレベーターは無いからね。
Photo : Daisuke Hishiki
※写真をタッチしてみてください! タブレットやPCでご覧いただけますと写真は標準サイズに拡大されるのでとても見やすくなります!!
②お部屋の中はリフォームされていてとっても綺麗!
③角部屋で3面採光でキッチンも洋室も明るい!
次の④からは悩む?かも知れないポイント
④築年数が気になる方に僕はオススメ出来ません!
⑤エレベーターは無いからね。
Photo : Daisuke Hishiki
※写真をタッチしてみてください! タブレットやPCでご覧いただけますと写真は標準サイズに拡大されるのでとても見やすくなります!!
物件詳細DETAIL
間取詳細 |
K 洋室(約6.0帖) 洋室(約4.5帖) |
向き |
南東 |
|---|---|---|---|
設備情報&地域情報 |
システムキッチン、2口コンロ、ガスコンロ、グリル、バス・トイレ別、追い焚き風呂、温水洗浄便座、室内洗濯機置場、洋室、フローリング、クローゼット、収納、シューズボックス、エアコン、バルコニー、角部屋(2面採光)、2階以上、モニター付インターホン、自転車置場、インターネット接続可、2人入居可、お子様相談、短期入居相談、
・----- ☆☆☆ ご近所のオススメ店 ☆☆☆ |
||
保険等 |
要 20,000円 2年 |
保証会社 |
必須 / 全保連㈱ / 初回月額総支払額の50%、毎月月額補償料1,200円が掛かります。 |
契約期間 |
定期借家 2年 |
更新料 |
再契約相談可 |
駐車場 |
無し |
学区 |
―
― |
諸費用 |
鍵交換代(要確認) - |
||
お客様へお願い |
内見予約のお問い合わせをいただいた後、最新の募集状況 と 募集内容(賃料・礼金・敷金・フリーレント等の条件)を再度確認してお返事いたします。 人気のお部屋は退室予定のお部屋でも先行申込みが入ってしまう場合も多々ございますのでご理解の程どうぞよろしくお願いいたします。 そのため掲載していても申込みが入ってしまっている場合もございますことをご了承くださいませ。 気づいた際にはすぐに物件情報を削除しております。 |
||
取引態様 |
仲介 |
仲介手数料(税別) |
1ヶ月 |
情報更新日 |
2025年11月01日 |
次回更新予定日 |
2025年11月02日 |
※掲載されている物件データが現状と異なる場合は現状を優先します。
周辺地図MAP
武蔵小山不動産COMPANY
所在地 |
東京都品川区小山3-6-6 ワールドパレス武蔵小山 104 |
||
|---|---|---|---|
免許番号 |
東京都知事免許(3)第95799号 |
||
会員 |
(公社)全国宅地建物取引業協会連合会
(公社)全国宅地建物取引業保証協会
|
||
電話番号 |
03-6426-2518 |
FAX番号 |
03-6426-2519 |
営業時間 |
店舗営業時間 11:00~16:00 (電話受付 10:00~17:00まで) |
定休日 |
水曜・その他不定休あり(GW・夏季・年末年始含む) |

